- 価格
- 2,480万円
- 種別
- 中古マンション
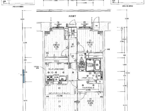
- 間取
- 3LDK
-
- 所在地
- 島根県松江市上乃木八丁目10-17 アルファスマート上乃木Ⅱ
- 交通
- JR山陰本線 乃木駅 徒歩2600m 徒歩37分
バス(仲良し橋 乗2分 停歩2分)
物件詳細
| 築年月 | 2021/05 | 新築/中古 | 中古 |
|---|---|---|---|
| 面積 | 70.98m² | 計測方式 | 壁芯 |
| バルコニー | 10.2m² | 向き | 東 |
| 建物階数 | 地上10階 | 部屋階数 | 4階 |
| 部屋/区画番号 | 402 | 総戸/区画数 | |
| 建物構造 | RC | ||
| 間取内容 | |||
| 駐車場 | 空有 1台分確保済み(敷地内)/2台目近隣契約可 | 取引態様 | 仲介 |
| 引渡/入居時期 | 現況 | ||
| 地目 | 宅地 | 用途地域 | 第二種中高層住居専用 |
| 都市計画 | 市街化区域 | 地勢 | |
| 建ぺい率 | 60% | 容積率 | 200% |
| 土地権利 | その他 | 接道状況 | |
| 国土法届出 | 不要 | ||
| 周辺環境 |
古志原小学校 第四中学校 |
||
| 設備・条件 | システムキッチン 給湯 追い焚き 浴室乾燥機 温水洗浄便座 エアコン インターネット有 オートロック TVドアホン プロパンガス エレベータ 駐車場有 駐輪場 バルコニー | ||
| 物件番号 | HQ0088 | ||
| 自社物 | 状態 | 売出中 | |
| 特記事項 | 【松江市・アルファスマート上乃木Ⅱ 402号室】 ―― 小学校徒歩7分×全室照明付き×バイパス沿いの分譲マンション ―― 2021年4月築の築浅分譲マンション「アルファスマート上乃木Ⅱ」(松江市上乃木)から、 採光たっぷりの〈3LDK+マルチクローゼット〉住戸をご紹介します。 松江市中心部へのアクセス良好なバイパス沿いで車移動がスムーズ、 小学校まで徒歩7分・保育園も徒歩2分と、子育て世帯に理想的な環境です。 《 5つの推しポイント》 全室LED照明器具付き&ダウンライト完備 追加購入なしで即入居OK。やさしい光で室内をより広く演出します。 LDKにエアコン1台設置済み 夏も冬も初期費用を抑えて快適スタート。 2.7帖のマルチクローゼット オフシーズンの衣類や大型家電までスッキリ収納。 時短&安全キッチン ビルトイン食洗機+ソフトクローズ収納で家事効率&お子さまの指はさみ防止。 南向きワイドバルコニー ダイニングまで陽射しが届き、洗濯物もよく乾きます。 《周辺環境》 こばと保育園…徒歩2分(約100 m) 松江市立古志原小学校…徒歩7分(約500 m) 松江市立第四中学校…徒歩18分(約1400 m) セブンイレブン松江上乃木9丁目店…徒歩9分(約650 m) フーズマーケットホック茶山店…徒歩9分(約700 m) 山陰道松江東出入口…車約1分(バイパス沿い) 《物件概要》 所在地:松江市上乃木8丁目(詳細はお問い合わせください) 所在階:4階/RC造 7階建 間取り:3LDK+マルチクローゼット 専有面積:※お問い合わせください 築年月:2021年4月 管理費:月額12200円 修繕積立金:月額4600円 災害積立金:月額300円 駐車場:1台分確保済み(敷地内)/2台目近隣契約可 引渡し:2025年7月1日以降 《お問い合わせ》 松江市のバイパス沿い立地でアクセスも良好、 子育てファミリーにぴったりな設備充実の分譲マンションです。 ご内覧・資料請求はお気軽にご連絡ください。 今なら照明・エアコン付きで初期費用をぐっと抑えて入居可能! ―― 「松江市で新生活を始めるなら」アルファスマート上乃木Ⅱ 402号室―― | ||
Loading...
※物件掲載内容と現況に相違がある場合は現況を優先と致します。
ご予約・お問い合わせ
お問い合わせはこちらからお寄せください
お電話からのご予約・お問い合わせ
TEL0852-69-3922
営業時間 9:00~18:00
定休日:水曜日、日曜日、祝祭日
WEBからのご予約・お問い合わせ












